ВЫ ЗДЕСЬ: Продажа квартир
ЖК "УНИВЕРСИТЕТ"
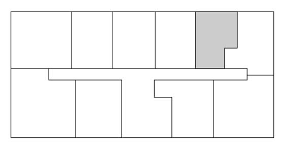
1-комнатная квартира №7
ЖК "УНИВЕРСИТЕТ"
1-комнатная квартира №7
1 подъезд, 1 этаж
Общая площадь 44.73 м2
| 1 Санузел |
5,70 |
| 2 Спальня |
13,15 |
| 3 Лоджия |
1,83 |
| 4 Кухня |
16,43 |
| 5 Прихожая |
7,44 |
Стоимость квартиры
Цена за 1 м2: 130002 рублей
Общая стоимость квартиры: 5 815 000 рублей
Забронировать
Заказать звонок
Если вам неудобно звонить нам, вы можете заказать звонок и мы вам перезвоним. Для этого заполните форму ниже и мы свяжемся с вами в удобное для вас время. Обязательные для заполнения поля помечены красной звездочкой.
Нажимая на кнопку вы принимаете
Политику и соглашаетесь на обработку персональных данных.